Chúng tôi luôn sẵn sàng giải đáp cho bạn vì chúng tôi hoạt động 24/7
Tổng quan dự án
+ Vị trí: 334 Tô Hiến Thành, Quận 10, TP. Hồ Chí Minh
+ Chủ đầu tư: Công ty Đông Dương, Trực thuộc tập đoàn Hoa Lâm
+ Tổng thầu: Coteccons
+ Diện tích khu đất: 33.000 m²
+ Diện tích đất xây dựng: 106.209 m²
+ Mật độ xây dựng: 39 %
+ Số tầng: 30 tầng
+ Tổng số căn hộ: 986 căn
+ Đơn vị quản lý: TẬP ĐOÀN JLL
+ Thiết kế cảnh quan: Verticall studio
+ Quản lý giám sát xây dựng: FQM
Vị trí dự án
VỊ TRÍ VÀNG DỰ ÁN KINGDOM 101
Với sứ mệnh đem đến không gian sống đẳng cấp giữa lòng thành phố, dự án căn hộ cao cấp Kingdom 101 sở hữu vị trí “kim cương” tại số 334, đường Tô Hiến Thành, Phường 14, Quận 10, TP.HCM. Đây là một trong những khu vực có quỹ đất sạch khan hiếm và đắt giá. Kingdom 101 kết nối thuận lợi với nhiều tuyến đường huyết mạch của Quận 10: Đường 3/2, Thành Thái, Nguyễn Tri Phương,…
Từ đây, cư dân dễ dàng tiếp cận nhiều tiện ích hiện hữu ở các khu vực lân cận. Một lợi thế nổi trội của dự án là tuyến Metro số 2, số 5 và nhà ga Đại học Bách Khoa đi vào hoạt động sẽ giúp việc di chuyển nhanh chóng hơn. Vì thế, việc sở hữu Kingdom 101 chính là lựa chọn cuộc sống xứng tầm với đẳng cấp của cư dân thành đạt.

Video dự án
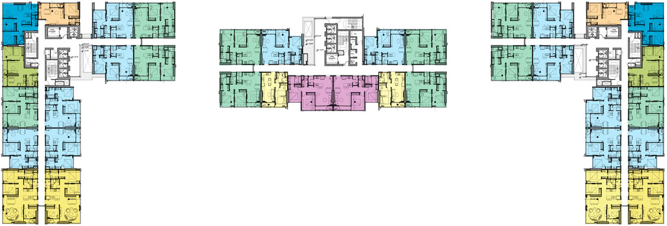
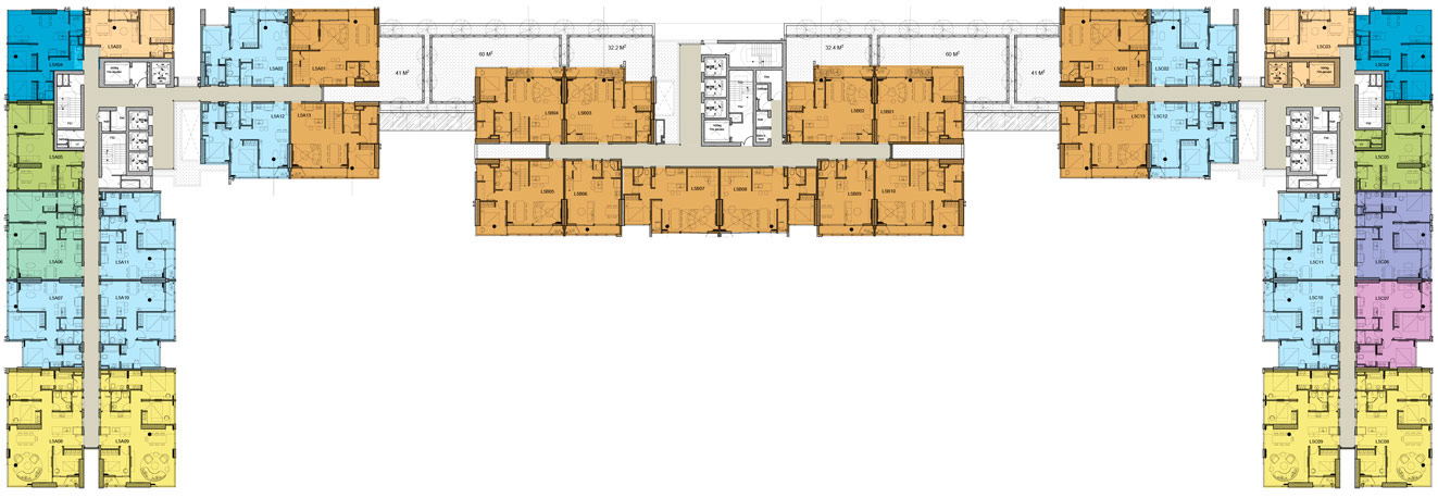
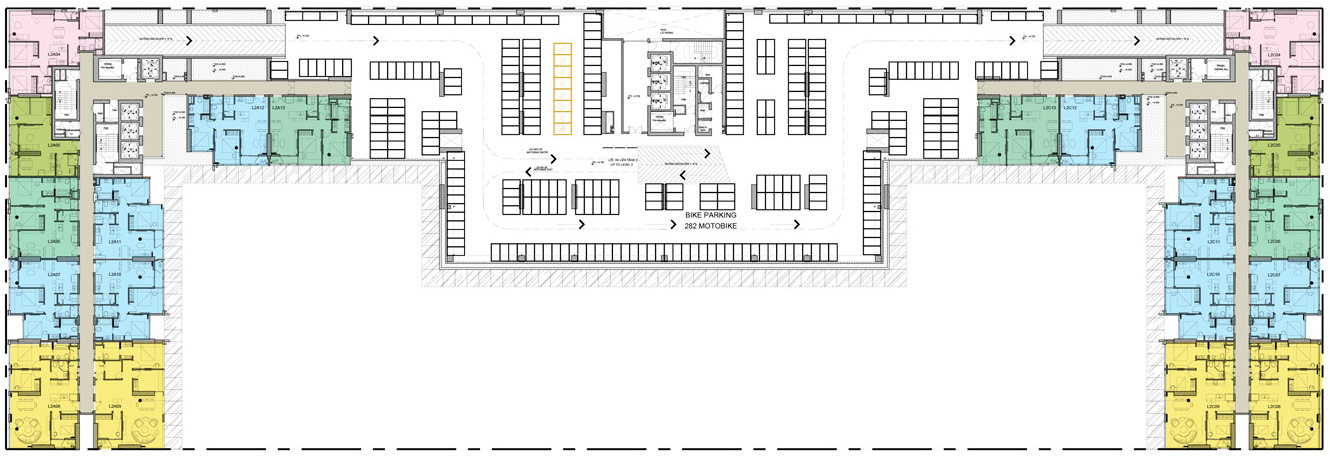
Mặt bằng dự án
THIẾT KẾ MẶT BẰNG DỰ ÁN
Các căn hộ của Kingdom 101 sở hữu một vẻ đẹp độc đáo với dàn nội thất sang trọng kết hợp giữa yếu tố hiện đại cộng hưởng với nét đẹp thiên nhiên hội tụ đầy đủ các yếu tố ánh sáng, gió, khí trời.
Được xem là một đứa con tinh thần ấp ủ lâu năm vì thế mỗi một căn hộ tại Kingdom dù có diện tích nhỏ hay lớn đều được đầu tư một cách kỹ lưỡng bởi một đội ngũ chuyên viên thiết kế chuyên nghiệp và có kinh nghiệm lâu năm.
- Căn 1 phòng ngủ: 48m2 – 60m2
- Căn 2 phòng ngủ: 70m2 – 78m2
- Căn 3 phòng ngủ: 102m2
- Căn 4 phòng ngủ: 160m2 – 200m2

Tiện ích dự án
TIỆN ÍCH DỰ ÁN KINGDOM 101
Tại Kingdom 101, chúng tôi không chỉ kiến tạo một quần thể kiến trúc đẳng cấp, hơn hết đó là một phong cách sống đỉnh cao để xứng tầm với tổ ấm của bạn
Công Viên Nội Khu 1,4 Ha Khép Kín : Khởi đầu ngày mới bằng việc tản bộ giữa những hàng cây rợp mát, ngắm nhìn những tia nắng giọt sương len lỏi qua từng kẽ lá, để tận hưởng sự tinh khôi, tràn đầy năng lượng của sớm mai, sẵn sàng cho một ngày dài năng động.
Nhờ sở hữu vị trí thuận lợi, dự án Kingdom 101 sở hữu nhiều tiện ích ngoại khu xung quanh đáng sống nhất khu vực. Căn hộ nằm gần trung tâm thương mại cao 18 tầng đẳng cấp và cao nhất trung tâm TP.HCM thuận lợi cho việc mua sắm, sinh hoạt. Công viên cây xanh 1ha lớn nhất khu trung tâm TPHCM mang đến cảnh quan cây xanh mát mẻ, trong lành cùng môi trường sống khỏe mạnh cho cư dân thể dục thể thao thư giãn.
Bên cạnh đó, xung quan dự án còn hỗ trợ nhiều tiện ích công cộng nhằm phục vụ nhu cầu an sinh đa dạng cho cư dân, có thể kể đến như: phòng tập gym, yoga, khu vui chơi trẻ em, khu sinh hoạt cộng đồng, Khu BBQ ngoài trời, khu chăm sóc sức khỏe,…




